Ricerca l'immobile

Casa Indipendente in vendita a Riolo Terme

Visualizza la gallery    Richiedi informazioni
Tipo contratto: Vendita
Prezzo: Trattativa Riservata

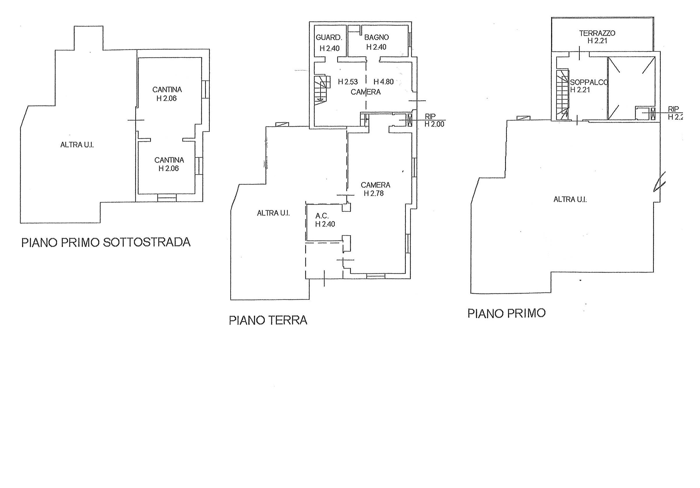
Planimetria dell'immobile

Descrizione Immobile

Bifamiliare completamente indipendente composta da due appartamenti, circondata sui 4 lati da corte privata. La casa si sviluppa su tre livelli: piano terra, primo e interrato ed è di circa 270mq. Il primo appartamento si compone di ingresso su soggiorno, cucinotto, camera matrimoniale con cabina armadio e bagno privato, soppalco con terrazzo e servizi al piano interrato. Il secondo: ingresso su soggiorno con angolo cottura, antibagno e bagno, al piano primo tre camere da letto, ripostiglio e due bagni. Ampio sottotetto parzialmente abitabile. Al piano interrato servizi. Garage e cantina esterni. L'immobile è in ottimo stato, completamente ristrutturato.

Dettagli sull'immobile

Tipologia: Casa Indipendente
Tipo contratto: Vendita
Riferimento: RT 05
Condizione: Buono stato
Indirizzo: Via Oriani A., 7
Cap: 48025
Città: Riolo Terme (RA)
Zona: Riolo Terme
Anno di costruzione: 2012
Superficie: 280 m2
Situato al piano: Terra

Servizi dell'immobile

Garage:
Cantina:
Giardino:
Locali: 8
Numero di Balconi: 1
Numero di Terrazze: 1
Classe energetica:
Riscaldamento autonomo:
Condizionatore: No
Cucina:
Ascensore: No

Richiedi informazioni

@
Tipo contratto: Vendita
Prezzo: Trattativa Riservata

Planimetria dell'immobile