Ricerca l'immobile

Nuova lottizzazione a Castel Bolognese

Visualizza la gallery    Richiedi informazioni
Tipo contratto: Vendita
Prezzo: Trattativa Riservata

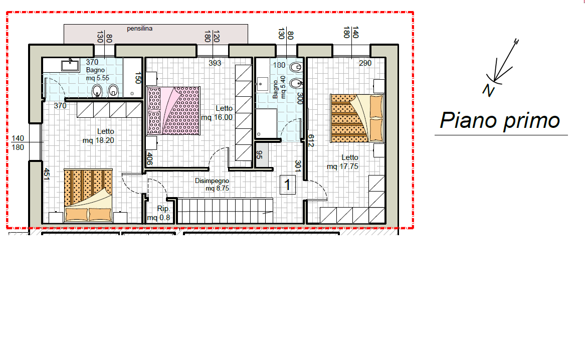
Planimetria dell'immobile

Descrizione Immobile

Scopri questa splendida soluzione cielo/terra disposta su due livelli. Con una superficie commerciale di 200 mq. Al piano terra troviamo una zona giorno open space di oltre 47 mq, un disimpegno con possibilità di mettere comodo armadio a muro o fare zona lavanderia, bagno finestrato, garage con zona termica. La casa al piano primo dispone di tre camere da letto matrimoniali, di cui la camera principale è dotata di un bagno privato. Allo stesso piano terzo bagno finestrato. Ampia corte privata ad angolo che si sviluppa su due lati. La possibilità di personalizzare gli spazi interni consente di adattare la casa alle proprie esigenze e gusti. Consegna prevista per dicembre 2027, questa casa è ancora in fase di costruzione. La classe energetica A4 assicura un consumo energetico ridotto. Ottime rifiniture e capitolato.

Dettagli sull'immobile

Tipologia: Villette a schiera
Tipo contratto: Vendita
Riferimento: L3 U1
Condizione: Nuovo
Indirizzo: Via Lughesi, 172
Cap: 48014
Città: Castel Bolognese (RA)
Zona: Castel Bolognese
Anno di costruzione: 2026
Superficie: 202 m2
Situato al piano: Terra

Servizi dell'immobile

Posti auto: 1
Garage:
Cantina: No
Giardino:
Locali: 6
Numero di Bagni: 3
Riscaldamento autonomo:
Condizionatore: No
Cucina:
Ascensore: No

Richiedi informazioni

@
Tipo contratto: Vendita
Prezzo: Trattativa Riservata

Planimetria dell'immobile